← Back
5
Bed
4
Bath
Pool
1.5
Mi
Hardee
$
2390000
/mo
2960
SqFt
Available:
-
Overview
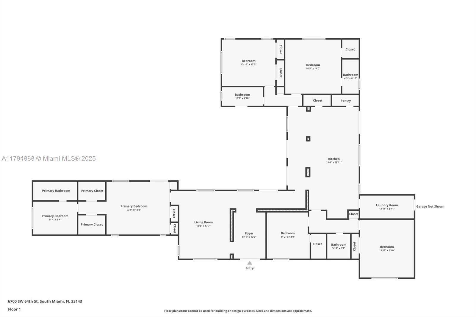
Rarely available property in South Miami’s coveted Estate Residential District (1-acre min), known for its leafy neighborhoods and parks. Prime location minutes from Pinecrest, Coral Gables, and Coconut Grove, with access to top schools, dining, and shopping. This lush, fully fenced 1-acre lot sits in a quiet, family-friendly community with mature trees and a 5 bed, 4 bath split-plan pool home. The master suite and an additional bedroom both feature en suites. Enjoy a bright living room with soaring ceilings, a large kitchen with granite counters, oversized island, and pantry. Features a spacious laundry room, sprinkler system, pool, gazebo, front porch, circular driveway, and 2-car garage. Room to add a guest/pool house, or both. Renovate the 2,960 sq ft home or build your dream estate.
Heather Hewitson
BHHS EWM Realty
Request a tour
Based on information from the Miami Association of REALTORS®. This information is for your personal, non-commercial use and may not be used for any purpose other than to identify prospective properties you may be interested in purchasing. Display of MLS data is usually deemed reliable but is NOT guaranteed accurate by the MLS.  All properties are subject to prior sale or withdrawal. All information provided is deemed reliable but is not guaranteed accurate, and should be independently verified. Unless otherwise specified in writing, Broker/Agent has not and will not verify any information obtained from other sources. The Broker/Agent providing the information contained herein may or may not have been the Listing and/or Selling Agent. The listing broker’s offer of compensation is made only to participants of the MLS where the listing is filed.

©2025 Miami Association of REALTORS® all rights reserved.
Listed by:
Rafaelle Quattrocchi
No items found.